R065. KUURNE
haalbaarheidsstudie stapelwoning
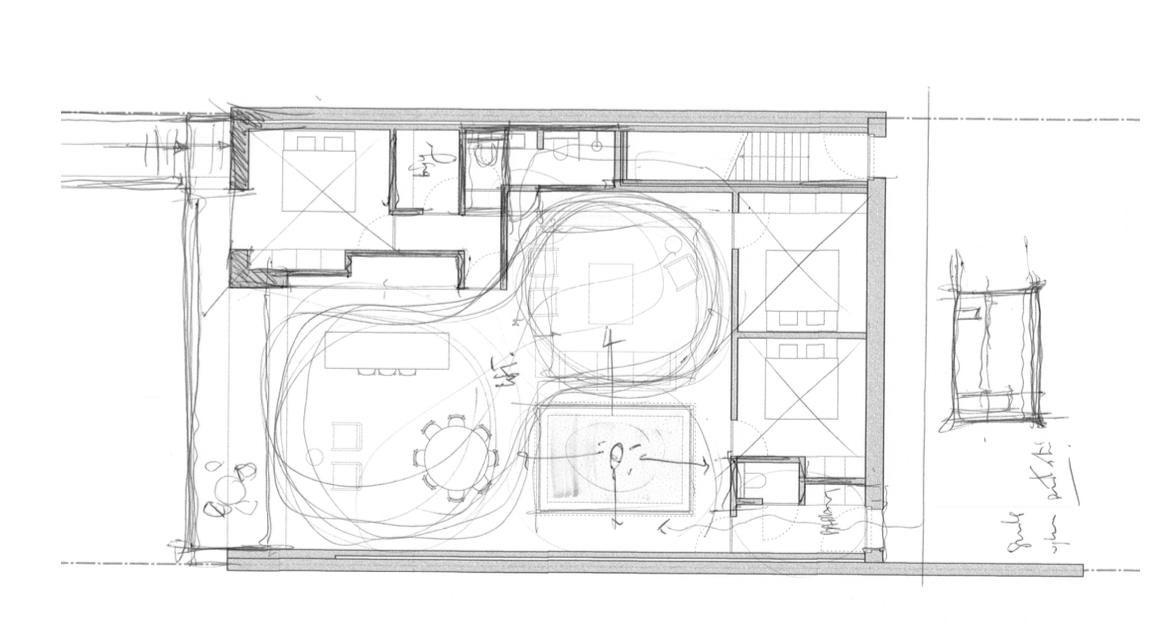
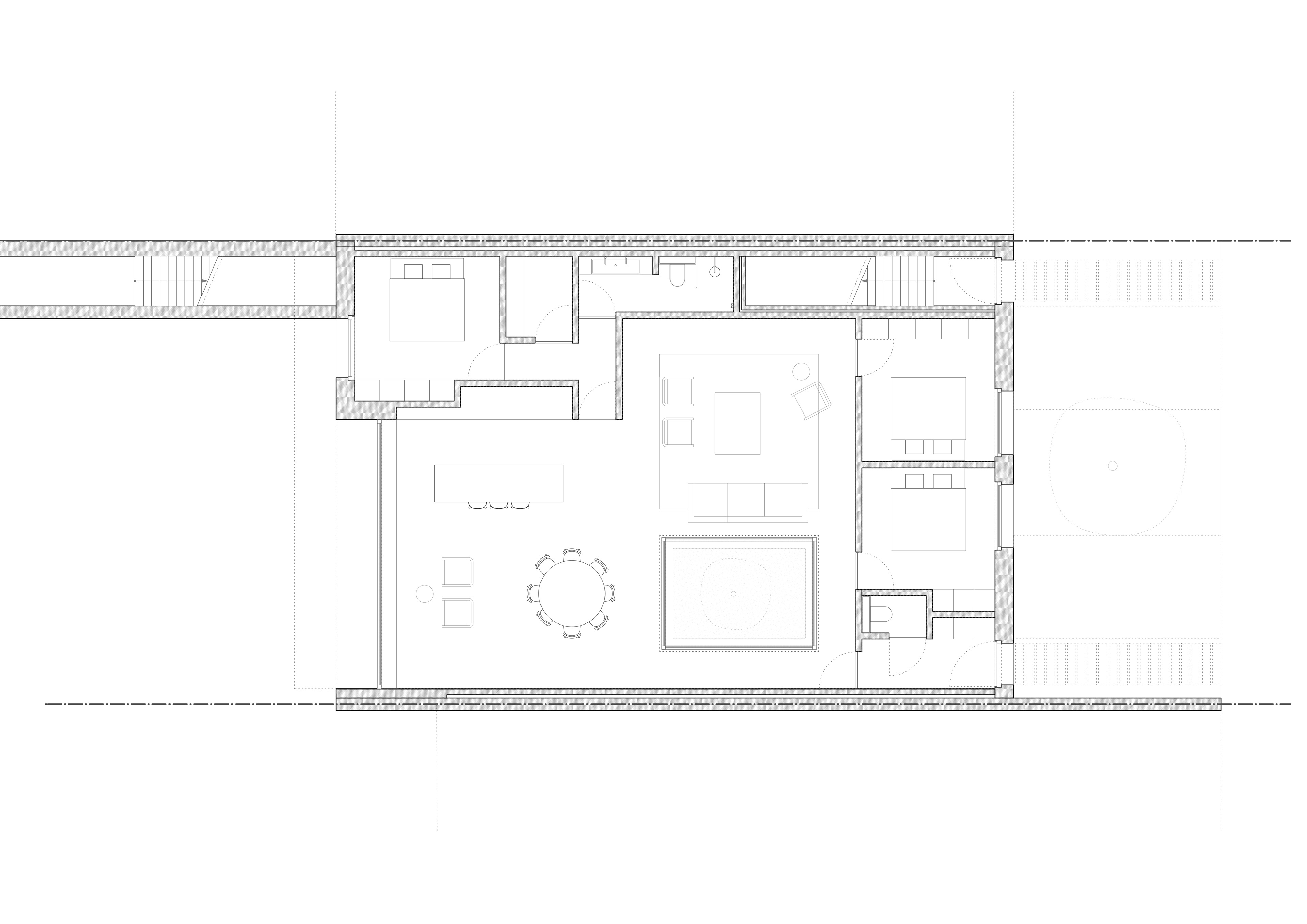
De studie vertrekt vanuit het herdenken van twee smalle rijwoningen met diepe tuinen. In plaats van de woningen naast elkaar te organiseren, worden ze gestapeld. Door beide percelen samen te nemen ontstaat een ruimer en samenhangender plan.
De twee woningen worden niet als losse entiteiten gezien, maar als delen van één geheel. De tuin wordt gedeeld en vormt een gemeenschappelijke buitenruimte die beide woningen met elkaar verbindt.
Het plan wordt opgebouwd rond een centrale patio die licht en lucht diep in het volume brengt. Deze open ruimte organiseert de circulatie en maakt het plan helder leesbaar. Aan de straatzijde worden de ramen gebundeld en zorgvuldig geplaatst. Door ze te concentreren ontstaat ruimte voor een groene voortuin die als filter werkt tussen woning en straat en de privacy van de slaapkamers beschermt.
De architectuur vertrekt vanuit een herinterpretatie van de bestaande typologie, waarbij densiteit wordt gekoppeld aan ruimtelijke kwaliteit, licht en gedeeld gebruik.